True

Gaijin 

Sushi Bar

Odoo • Image and Text


LOCAL

Parque das Nações, Lisboa

TIPOLOGIA
Restaurante

ANO
2015

BRANDING

WDL. Brand & Retail

AMBIENTE E ARQUITECTURA
WDL. Brand & Retail

PROJECTO DE ARQUITECTURA
Gaijin Sushi Bar é um restaurante de Sushi com uma oferta premium, elaborada por um chef de renome em Portugal e que conta com excelentes localizações geográficas.

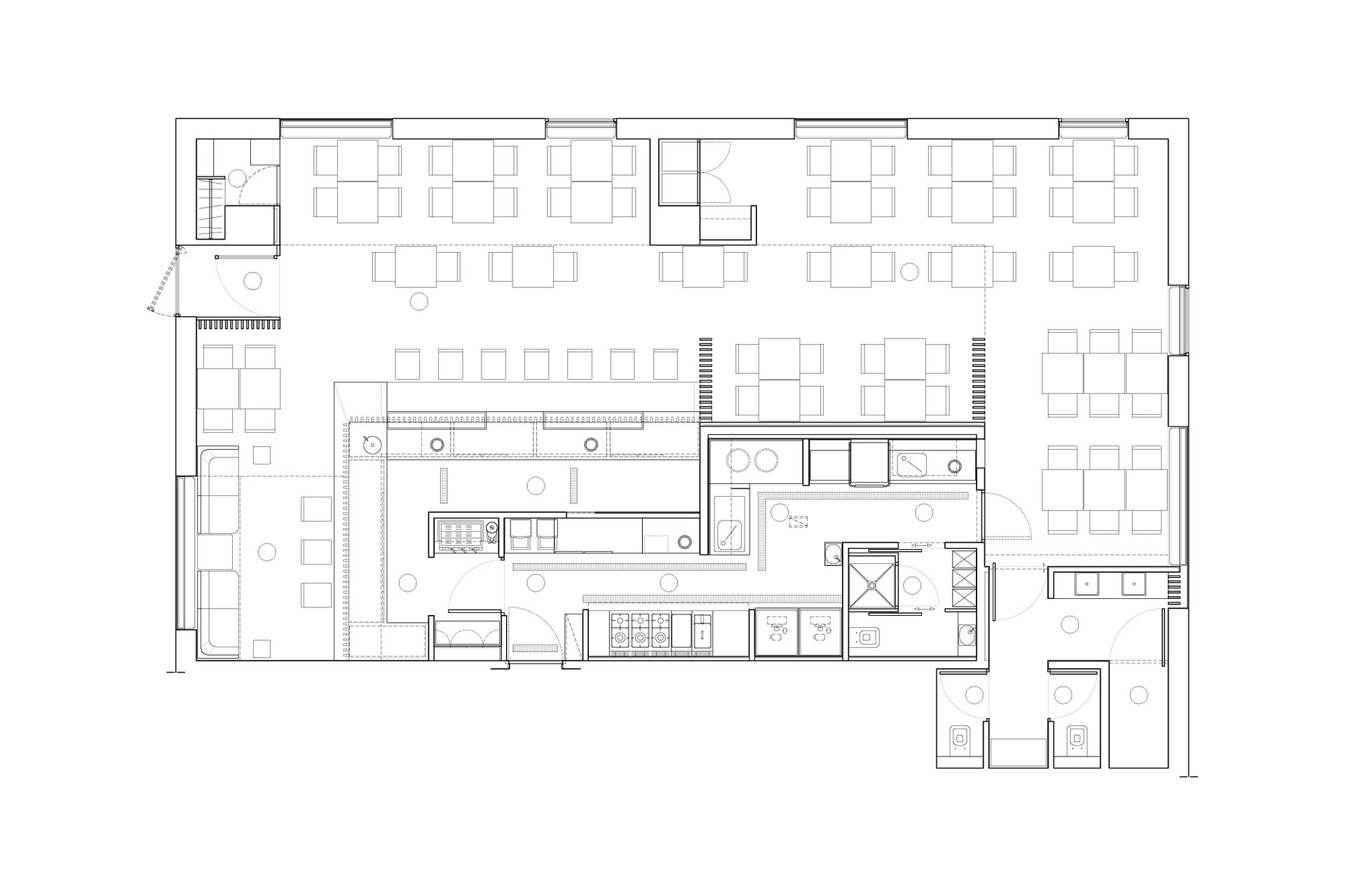
Este conceito teve a sua primeira localização em Paço de Arcos, onde ficou muito conhecido pelos pratos de muita qualidade. Aquando da sua expansão para a cidade de Lisboa, mesmo no coração do Parque das Nações, foi estendido o convite à WDL para fazer o rebranding da marca, o projecto e implementação de um espaço novo, desenhado de raiz, que reflectisse em si todos os valores de qualidade e conforto desta marca.

Procedemos à actualização da imagem gráfica da Identidade, mantendo o símbolo já reconhecido da Carpa, elemento muito associado ao restaurante de Paço de Arcos, e fizemos uma depuração de todos os elementos.

 
O nome Gaijin é uma palavra japonesa, tipicamente associada a um estrangeiro no Japão, que é quase um pseudónimo do chef que assina os pratos deste restaurante. Como tal a sua utilização enquanto carácter de forte expressão visual, na sua forma tradicional japonesa, pareceu-nos essencial enquanto elemento identificador da marca.

Surgiu assim o novo logotipo, associado a uma palete cromática neutra, com texturas e tons frios, que remetem para o tradicional japonês, mas com elementos de modernidade.

PROJECTO DE COMUNICAÇÃO
Com o recurso aos símbolos e referências da nova identidade do Gaijin, foi desenvolvido um diverso número de peças gráficas para servir de apoio à comunicação de todo o restaurante, como cartão de visita, design da carrinha, flyers, voucher digital, ementas, preçário, roll ups e toldos interiores.

Na vertente digital da comunicação da marca, a WDL desenhou o layout do novo website tanto na versão mobile como para laptop.

To install this Web App in your iPhone/iPad press and then Add to Home Screen.